
▲ 高橋豬之助的住宅西北側外觀
(圖片來源:台灣建築會誌 第6輯 第5號,1934年)

▲ 高橋豬之助的住宅南側外觀
(圖片來源:台灣建築會誌 第6輯 第5號,1934年)

▲ 高橋豬之助的住宅3樓屋頂涼台
(圖片來源:台灣建築會誌 第6輯 第5號,1934年)
高橋豬之助住宅是3層樓高的鋼筋混凝土建築,由台灣土地建物株式會社負責設計與監造,浦田永太郎的浦田組承攬興建,浦田永太郎同時也是台灣畜產株式會社的取締役,和高橋豬之助算是商場上的朋友。該建築自1933年1月動工,同年9月竣工,總工程費3萬5,000圓,總樓地板面積有160.88坪,樓高47.5尺,大約是14.4公尺,外觀採前衛的圓弧流線設計,搭配圓窗,表現出強烈的現代感,內部電氣、給水管線採暗管設計,全部埋設於混凝土中,屋頂還設有觀景涼台,可眺望淡水河景,是當時全台灣最摩登的住宅。

▲ 高橋豬之助的住宅南向立面圖
(圖片來源:台灣建築會誌 第6輯 第5號,1934年)

▲ 高橋豬之助的住宅北向立面圖
(圖片來源:台灣建築會誌 第6輯 第5號,1934年)

▲ 高橋豬之助的住宅西向立面圖
(圖片來源:台灣建築會誌 第6輯 第5號,1934年)

▲ 高橋豬之助的住宅東向立面圖
(圖片來源:台灣建築會誌 第6輯 第5號,1934年)
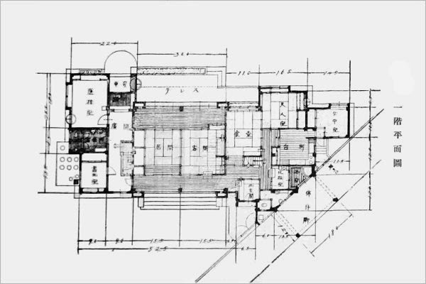
高橋豬之助住宅的1樓有83.54坪,為主要的起居空間,配置有玄關、廣間、應接室、客用便所、書生室、居間、食堂、夫人室、台所、化粧室、浴室、家族便所、女中室;2樓有65.03坪,配置有大廣間、客間、展望室物置、便所、露台;3樓為休閒場所,有展望室和露台,室內空間10.51坪;再上面的屋凸層1.8坪。

▲ 高橋豬之助的住宅1樓平面圖
(圖片來源:台灣建築會誌 第6輯 第5號,1934年)

▲ 高橋豬之助的住宅2樓平面圖
(圖片來源:台灣建築會誌 第6輯 第5號,1934年)

▲ 高橋豬之助的住宅3樓平面圖
(圖片來源:台灣建築會誌 第6輯 第5號,1934年)

▲ 高橋豬之助的住宅4樓平面圖
(圖片來源:台灣建築會誌 第6輯 第5號,1934年)
高橋豬之助的住宅於1970年拆除,改建為12層樓高的世紀大飯店,該飯店建築由蔡柏鋒建築師事務所設計,於1972年10月20日開業,共有250間客房,是台灣第一家參加世界旅館聯營組織的國際觀光飯店,曾經風光一時。世紀大飯店於1987年易主,被東和鋼鐵的老闆買下,改名為豪景大酒店。

▲ 高橋豬之助住宅的位置現在是豪景大酒店

完全不知道豪景之前曾有這樣的建築!我比較喜歡特別的建築,真可惜。
回覆刪除請問高橋這棟房子是否有地下室?一階平面有點看不出來
回覆刪除從台灣建築會誌的資料看起來是沒有地下室。
回覆刪除Hello.
回覆刪除Nice to meet you.My name is Jin Hashimoto. I'm a Japanese.
My grandma's name is Haruko Takahashi. She is Inosuke Takahashi's grandchild.
Thank you so much for your an interest. I'm searching for lost memories. Because I'm an artist. And group exhibition is now open in Taipei!
If you are interested in exhibition, please see my lost memories.(台北市中正區師大路206號1樓/Galerie F&F)
Thank you so much. And l'm sorry for my poor English.
Jin Hashimoto
great exhibition !
刪除第11屆日本當代藝術Tagboat Award特展